Este site utiliza cookies para permitir a mudança de língua e o armazenamento dos seus imóveis favoritos. Ao utilizar este site, concorda que o mesmo utilize cookies.

Apartamento T3 Implex | São Bernardo

585.000€



Referência

Ni2140.F

Natureza

Venda

Tipo de Imóvel

Apartamento

Subtipo de Imóvel

Implex

Tipologia

T3

Estado

Em Construção

Certificado energético

Em execução


Distrito

Aveiro

Concelho

Aveiro

Freguesia

São Bernardo

Código Postal

3810


Área Útil

0 m2

Área Bruta

224 m2

Área de Terreno

0 m2

Partilhar



Contactar Imobiliária

*Preenchimento obrigatório
Ao clicar em 'Enviar', declara que aceita a nossa Política de Privacidade.
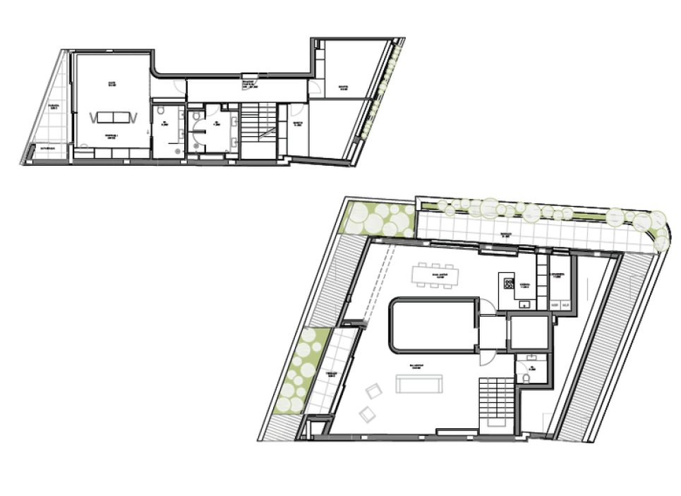
Apartamento T3 Implex - Empreendimento Cruz Alta 1 Residences 

Imóvel com 224m² de área e 2 lugares de garagem, concebido com materiais e equipamentos de elevada qualidade:
– Pavimento flutuante nogueira
– Louças sanitárias, bases de duche, lavatórios e comandos SANINDUSA
– Equipamentos BOSCH
– Ar condicionado instalado
– Sistema de VMC (ventilação mecânica controlada)
– Bomba de calor para maior eficiência energética

Para mais informações não hesite em contatar.
Ang. Ni2140

Este imóvel não tem características definidas.

Este imóvel não tem áreas definidas.

Imóveis
Semelhantes

Apartamento
Venda

530.000€

Apartamento T3 em construção I São Bernardo ...

530.000€

Aveiro / Aveiro / São Bernardo


Ref: Ni2067-4U

Ref: Ni2067-4U

116 m2

3

Apartamento
Venda

572.272€

Apartamento T3 com lugar garagem | Empreendim...

572.272€

Aveiro / Aveiro / Esgueira


Ref: Ni1800.I.D

Ref: Ni1800.I.D

107.52 m2

3

Apartamento
Venda

365.700€

Apartamento T2 com Varanda e Garagem | Empree...

365.700€

Aveiro / Aveiro / Esgueira


Ref: Ni2110.2.AL

Ref: Ni2110.2.AL

70.59 m2

2

Em execução